福岡で新築一戸建ての購入・マンション売却・中古マンションの購入をお考えの方是非当社にご相談ください!

トップページ > 前のページ > 物件詳細
物件詳細
糟屋郡篠栗町田中第3
| < 前のページに戻る |
クリックにて拡大
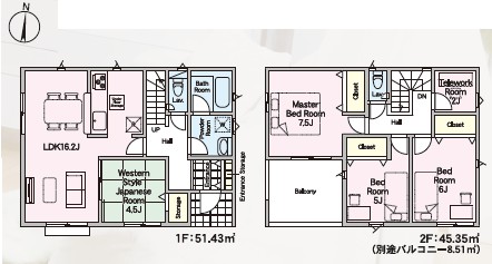
間取り図
クリック拡大
クリックにて拡大
所在地
(カーナビ入力)
糟屋郡篠栗町田中3-6-7
交通 JR篠栗線『篠栗』駅 徒歩11分
価格 3,788万円 間取り 4LDK
物件種別 一押し
新築戸建
現況 完成済
完成日 2026年4月 引渡日 即時対応
土地面積 153.65u 建物面積 96.78u
建物構造 木造
土地権利 所有権 地目 宅地
都市計画 市街化区域 用途地域 第一種住居地域
建ぺい率 1号棟:70%、2号棟:60% 容積率 160%
その他の法律上の制限 建基法22条区域・宅地造成等工事規制区域
設備 九州電力・公営水道・本下水・オール電化
その他費用
小学校区 北勢門小学校 中学校区 篠栗北中学校
総戸/総棟数 2棟 取引態様
備考 ※残1棟/全1棟
情報公開日 2026年4月8日 物件No. sumai0058
クリックにて拡大 クリックにて拡大 クリックにて拡大
クリックにて拡大 クリックにて拡大 クリックにて拡大
クリックにて拡大 クリックにて拡大 クリックにて拡大
物件のお問合せ・内見予約
最近見た物件